
Dự án tập trung vào việc cải tạo và tái cấu trúc toàn bộ không gian trường học Me School theo triết lý Montessori – giúp trẻ phát triển toàn diện về thể chất, tinh thần và tư duy độc lập. Quá trình cải tạo bao gồm cả thiết kế kiến trúc, lựa chọn học cụ chuyên dụng và tổ chức môi trường học thân thiện, an toàn và mở.
Mục tiêu chính:
- Thiết kế không gian học mở, đa chức năng, tối ưu theo từng độ tuổi
- Triển khai hệ thống nội thất chuẩn Montessori: bàn ghế thấp, giá kệ mở, học cụ gỗ tự nhiên
- Phân chia lớp học theo các khu vực chuyên biệt: thực hành cuộc sống, cảm quan, toán học, ngôn ngữ, văn hóa
- Tối ưu ánh sáng tự nhiên, màu sắc trung tính, vật liệu an toàn cho trẻ
- Ứng dụng công nghệ để hỗ trợ quản lý và giảng dạy hiệu quả hơn

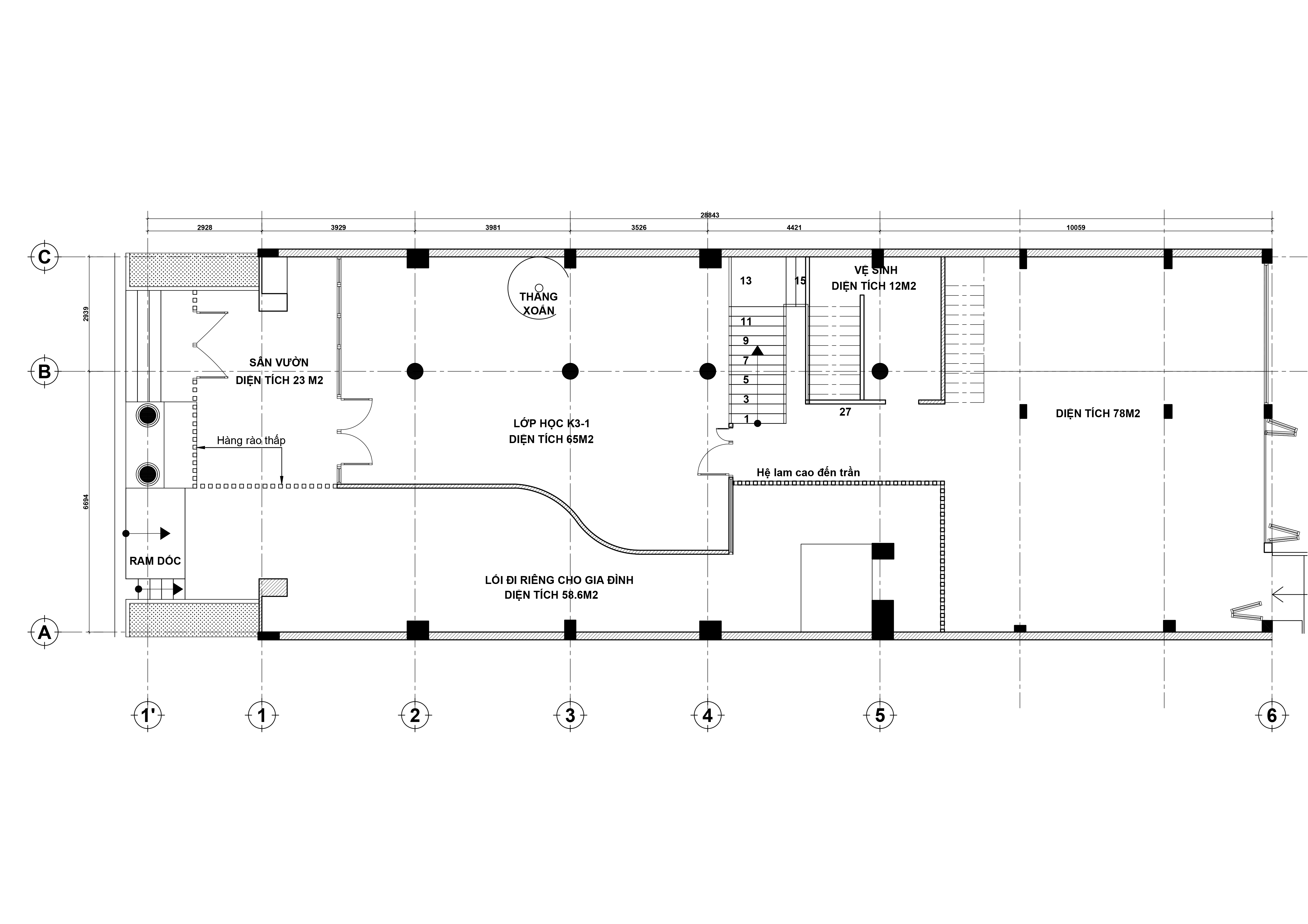
Bản vẽ mặt bằng tầng trệt khu 3

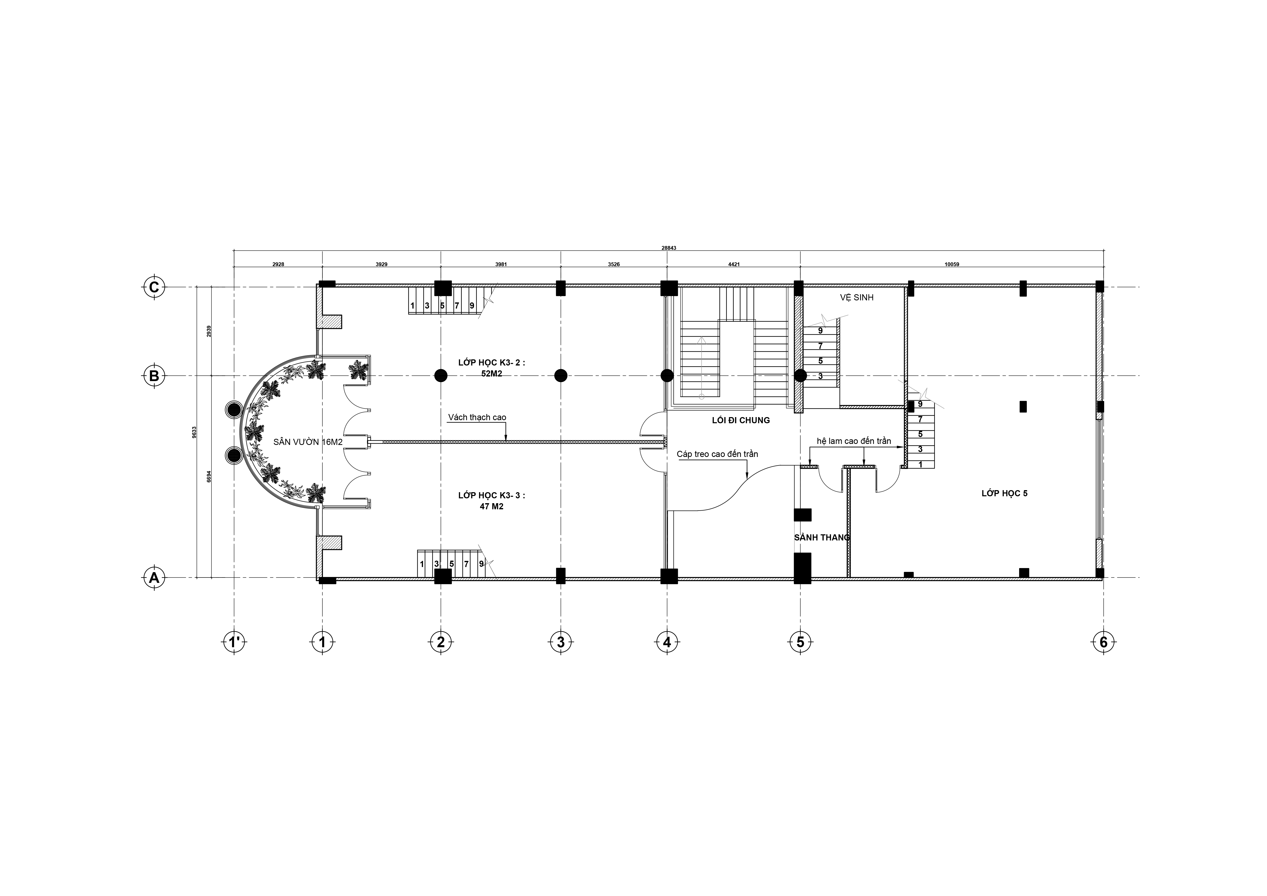
Bản vẽ mặt bằng lầu 2 khu 3

Không gian lớp học 1

Không gian lớp học 2
Liên hệ với tôi để thảo luận thêm về sản phẩm hoặc hợp tác trong các dự án khác.
Liên hệ ngay